1/3 Boona Street, Forster
Industrial
Versatile Industrial Space in Prime Forster Location
• Prominent street frontage in the heart of Forster's industrial estate
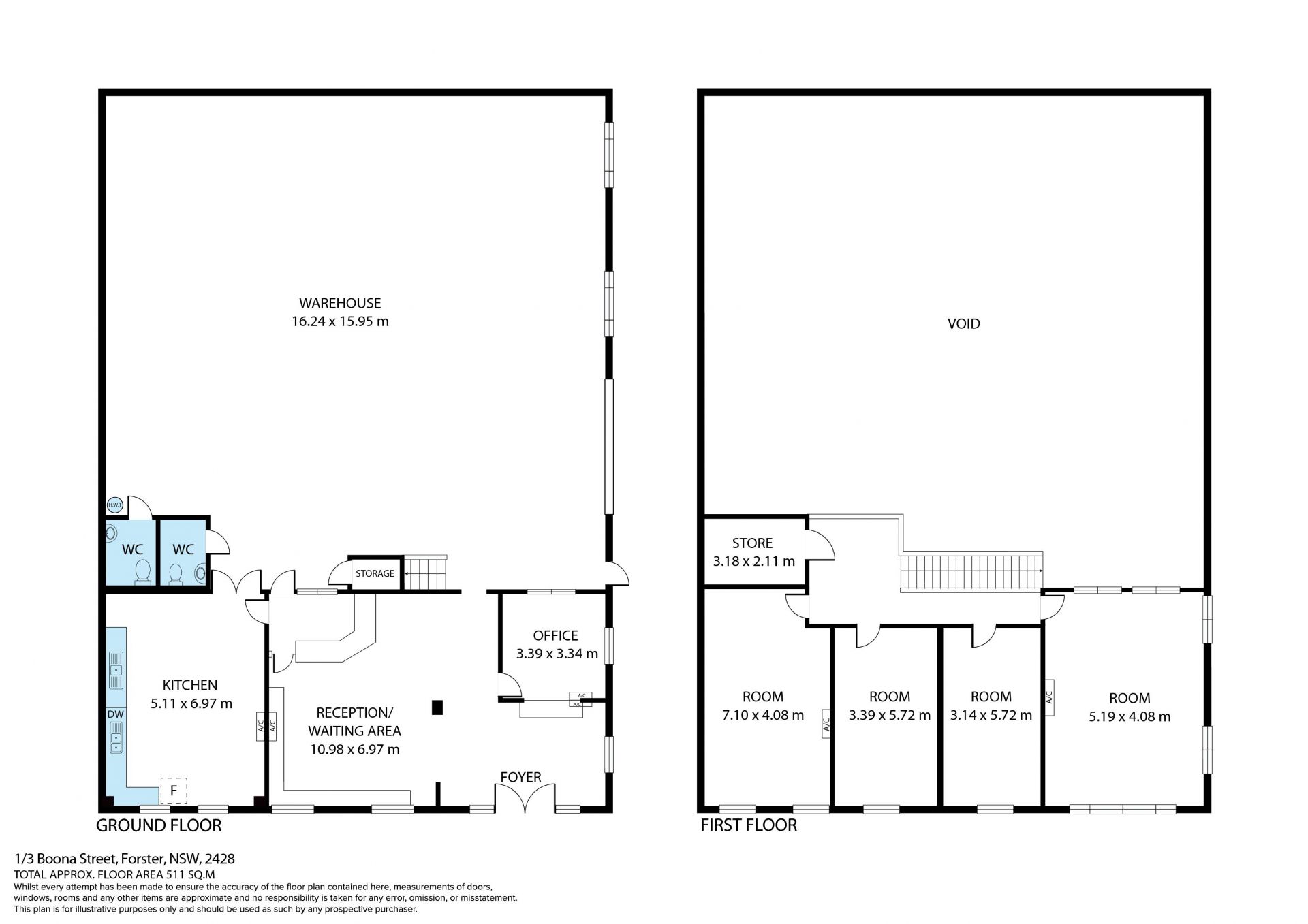
• Air-conditioned reception and kitchen/staff room for everyday comfort
• Expansive open-plan warehouse with two bathrooms on ground level
• Lower level offers approx. 357sqm of flexible floor space
• Mezzanine features four multipurpose rooms/offices (two with A/C)
• Rare opportunity suited to a wide range of industries and operations
Offering outstanding exposure and exceptional versatility, this industrial property presents a rare opportunity to secure a quality premises in a tightly held location. Whether you're looking to expand, relocate or launch a new venture, the adaptable layout and functional features make this space ideal for trades, logistics, manufacturing, or even showroom-based businesses.
Fur further information and to arrange a private viewing contact the First National Real Estate team on 02 6554 5011 to secure a standout premises in a high-demand precinct.
• Air-conditioned reception and kitchen/staff room for everyday comfort
• Expansive open-plan warehouse with two bathrooms on ground level
• Lower level offers approx. 357sqm of flexible floor space
• Mezzanine features four multipurpose rooms/offices (two with A/C)
• Rare opportunity suited to a wide range of industries and operations
Offering outstanding exposure and exceptional versatility, this industrial property presents a rare opportunity to secure a quality premises in a tightly held location. Whether you're looking to expand, relocate or launch a new venture, the adaptable layout and functional features make this space ideal for trades, logistics, manufacturing, or even showroom-based businesses.
Fur further information and to arrange a private viewing contact the First National Real Estate team on 02 6554 5011 to secure a standout premises in a high-demand precinct.
