13 Colliton Parade, FORSTER
House
Luxurious Home In Superb Location
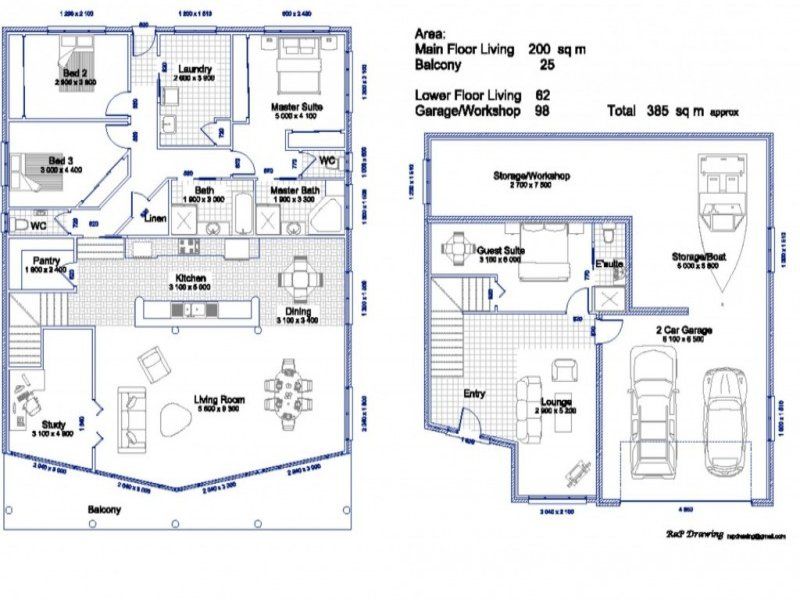
* Master built, 4 bed home
* Sweeping water & golf course views
* Huge garaging + workshop / storage area
* Modern kitchen, lge open plan living areas
* Approx. 450m to One Mile Beach
* Sweeping water & golf course views
* Huge garaging + workshop / storage area
* Modern kitchen, lge open plan living areas
* Approx. 450m to One Mile Beach
