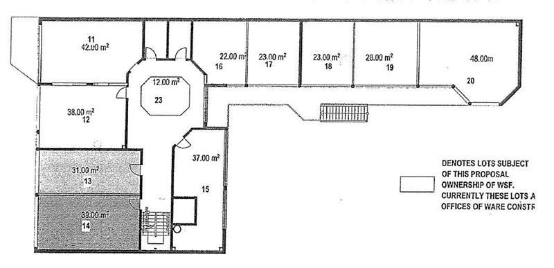
16 & 17/60 Manning Street, TUNCURRY
Offices
Office Spaces in Tuncurry CBD
UNIT 16
* $60,000
* 22sqm
* Air conditioner
* Carpeted throughout
* Currently converted to 2 offices by glass sliding doors
* Internal access to Unit 17
UNIT 17
* $60,000
* 23sqm
* Air conditioning
* Ceiling fan
* Carpeted throughout
* Currently converted to 2 offices by glass sliding doors
* Internal cess to Unit 16
UNIT 18, 19 & 20
23sqm, 28sqm & 48sqm respectively
* Currently leased to Dementia Clinic
* Financials can be provided
All units have access to female and male amenities.
There is an elevator with easy access to all offices.
There is limited secure parking available but ample nearby parking.
Great opportunity for an array of business & industries, including accounting, legal, medical and many more. Also a great prospect for the astute investor.
For further information and to schedule your private inspection, contact listings agents First National Real Estate on 02 6554 5011.
* $60,000
* 22sqm
* Air conditioner
* Carpeted throughout
* Currently converted to 2 offices by glass sliding doors
* Internal access to Unit 17
UNIT 17
* $60,000
* 23sqm
* Air conditioning
* Ceiling fan
* Carpeted throughout
* Currently converted to 2 offices by glass sliding doors
* Internal cess to Unit 16
UNIT 18, 19 & 20
23sqm, 28sqm & 48sqm respectively
* Currently leased to Dementia Clinic
* Financials can be provided
All units have access to female and male amenities.
There is an elevator with easy access to all offices.
There is limited secure parking available but ample nearby parking.
Great opportunity for an array of business & industries, including accounting, legal, medical and many more. Also a great prospect for the astute investor.
For further information and to schedule your private inspection, contact listings agents First National Real Estate on 02 6554 5011.
