502/18-20 Manning Street, Tuncurry
Unit
Fifth-Floor Apartment with Sweeping Water Vistas
** Unrivalled lake & bridge views from The Heritage complex
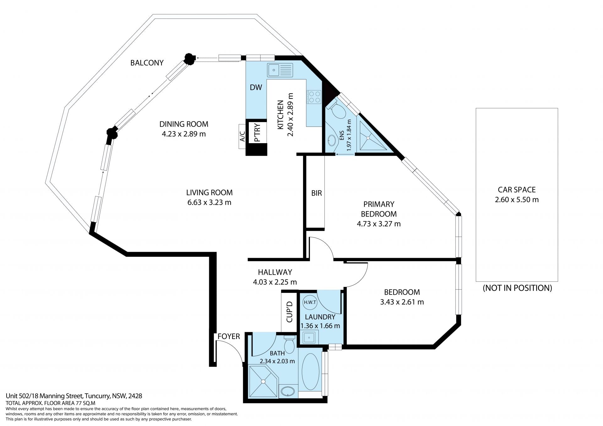
** Fifth-floor, two bedroom apartment with wraparound balcony
** Open plan living with A/C; modern kitchen with quality appliances
** Master bedroom with ensuite & built-ins; generous family bathroom
** Complex amenities include pool, tennis court, BBQ area & elevator
** Secure car space; walk to cafés, shops, beaches & more
Set on the 5th floor of the iconic Heritage complex, this two bedroom apartment delivers the ultimate in coastal convenience with breathtaking views over Wallis Lake and the bridge. A great opportunity in one of Tuncurry's most sought-after addresses, it combines comfortable and bright interiors with a lifestyle second to none.
Step inside and be immediately drawn to the open plan living zone, perfectly positioned to showcase the captivating lake and bridge vistas. A split-system air conditioner ensures comfort, while sliding doors connect seamlessly to the covered wraparound balcony – the ideal setting for alfresco dining, morning coffees, or simply watching the water sparkle.
The kitchen offers modern practicality with quality appliances including a dishwasher, electric cooktop and ample storage. A breakfast bar adds to the sense of space and functionality, making it equally suited to everyday living or entertaining guests.
Accommodation comprises two well-sized bedrooms, each with ceiling fans. The master features mirrored built-in wardrobes and a private ensuite, while the second bedroom is serviced by a sizable family bathroom complete with shower, toilet and bath.
Additional features include a convenient internal laundry, secure single car space and storage area. Residents of The Heritage also enjoy exclusive access to premium facilities such as an inground swimming pool, tennis court, BBQ area and elevator access for ease of living.
Perfectly positioned, you can leave the car at home and walk to Tuncurry's eateries, Woolworths and essential amenities. A short stroll along the famous bridge connects you to Forster's famous beaches and vibrant town centre.
Offering unbeatable views, low-maintenance living, and a prime location, this apartment presents the pinnacle of lakeside living. Contact exclusive listing agent Broc Buderus and the First National Real Estate team today on 02 6554 5011 to arrange your private inspection.
Additional Information (subject to change):
Council Rates & Water Access Charge - $3,092 per annum
Strata Rates - $2,696.42 per Quarter
DISCLAIMER: The information contained in this advertisement has been obtained from sources deemed reliable. However, we do not guarantee its accuracy and recommend that interested parties carry out their own investigations.
** Fifth-floor, two bedroom apartment with wraparound balcony
** Open plan living with A/C; modern kitchen with quality appliances
** Master bedroom with ensuite & built-ins; generous family bathroom
** Complex amenities include pool, tennis court, BBQ area & elevator
** Secure car space; walk to cafés, shops, beaches & more
Set on the 5th floor of the iconic Heritage complex, this two bedroom apartment delivers the ultimate in coastal convenience with breathtaking views over Wallis Lake and the bridge. A great opportunity in one of Tuncurry's most sought-after addresses, it combines comfortable and bright interiors with a lifestyle second to none.
Step inside and be immediately drawn to the open plan living zone, perfectly positioned to showcase the captivating lake and bridge vistas. A split-system air conditioner ensures comfort, while sliding doors connect seamlessly to the covered wraparound balcony – the ideal setting for alfresco dining, morning coffees, or simply watching the water sparkle.
The kitchen offers modern practicality with quality appliances including a dishwasher, electric cooktop and ample storage. A breakfast bar adds to the sense of space and functionality, making it equally suited to everyday living or entertaining guests.
Accommodation comprises two well-sized bedrooms, each with ceiling fans. The master features mirrored built-in wardrobes and a private ensuite, while the second bedroom is serviced by a sizable family bathroom complete with shower, toilet and bath.
Additional features include a convenient internal laundry, secure single car space and storage area. Residents of The Heritage also enjoy exclusive access to premium facilities such as an inground swimming pool, tennis court, BBQ area and elevator access for ease of living.
Perfectly positioned, you can leave the car at home and walk to Tuncurry's eateries, Woolworths and essential amenities. A short stroll along the famous bridge connects you to Forster's famous beaches and vibrant town centre.
Offering unbeatable views, low-maintenance living, and a prime location, this apartment presents the pinnacle of lakeside living. Contact exclusive listing agent Broc Buderus and the First National Real Estate team today on 02 6554 5011 to arrange your private inspection.
Additional Information (subject to change):
Council Rates & Water Access Charge - $3,092 per annum
Strata Rates - $2,696.42 per Quarter
DISCLAIMER: The information contained in this advertisement has been obtained from sources deemed reliable. However, we do not guarantee its accuracy and recommend that interested parties carry out their own investigations.
